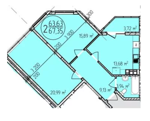
2-к. квартира, 63 м², 8/21 эт.
| Регион страны | Краснодарский край |
|---|---|
| Район | муниципальное образование Новороссийск |
| Населенный пункт | Новороссийск |
| Район города | Центральный |
| Улица | улица Чайковского |
| Номер дома | 10А |
Описание
Дом сдан и заселен.
В доме индивидуальное отопление, в квартире установлен 2х контурный газовый котел, что позволяет значительно экономить на платежах.
В квартире предчистовая отделка, у вас есть возможность сделать ремонт вашей мечты.
В районе хорошо развита инфраструктура.
| Сведения о недвижимости | |
|---|---|
| ID | 1170 |
| Ремонт | Без отделки |
| Балкон | Лоджия |
| Доля в квартире | Нет |
| Статус Недвижимости Авито | Квартира |
| Право собственности | Собственник |
| Тип парковки | В здании |
| Комнат в квартире | 2 |
| Площадь, кв.м. | 63 |
| Площадь кухни, кв.м. | 15 |
| Этаж | 8 |
| Этажность | 21 |
| Материал стен | Монолитный |
| Стоимость | 6 130 000 руб. |
Стоимость - 6 130 000 руб.
Цена кв.м. - 97 302 руб.
Тема TM58887 | Ипотечный калькулятор
Сумма переплаты: 0
Сумма общая: 0
Ежемесячный платеж: 0


